

お知らせ
不動産購入
×
不動産管理




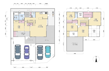
不動産を売りたい方のトータルサポート
高崎・前橋の土地や建物、マンションの売却をご検討の方は、
Room’sにご相談ください。
お客様一人ひとりに合わせた最適な方法で迅速に対応します。
様々なケースのご売却もぜひご相談ください。

「一棟アパート」から「区分マンション」まで
現在お持ちの投資物件を売却したい方はお任せください!
購入希望者からの相談が多い
高崎・前橋での実績が豊富
専門スタッフだから安心


私たちについて
株式会社Room’s
〒370-0052 群馬県高崎市旭町46-2 高砂ビル高崎西口 1-A
営業時間:10:00〜17:00
定休日:毎週水・日曜日 / 年末年始
Room’s(ルームス)では、今までデザインリフォームやリノベーション物件、土地からの新築アパート、店舗・事務所の企画提案建築に携わってきました。使いにくい間取りをニーズのある間取りへ。使いにくく古くなった設備は、新しく費用対効果が高いものへ。内装デザインは、おしゃれで魅力的な空間へ。Room’sのデザインセンスで生まれ変わる賃貸物件。そしてClaceという新築アパートブランドをご紹介しております。